ID: 10167

Historische Remise mit vielseitigem Gewerbeensemble und Lagerflächen in Köpenick

12557 Berlin
Büro
Büro-/ Lagergebäude
Wohnfläche ca.
220 m2
Räume
10
Käuferprovision
7,14 % inkl. gesetzlicher MwSt.

Dreh mich, um in die Vollbildansicht zu wechseln.

Über das Objekt

✨ Loftartige Einheit in historischer Remise – Wohnen & Arbeiten im Herzen von Köpenick ✨

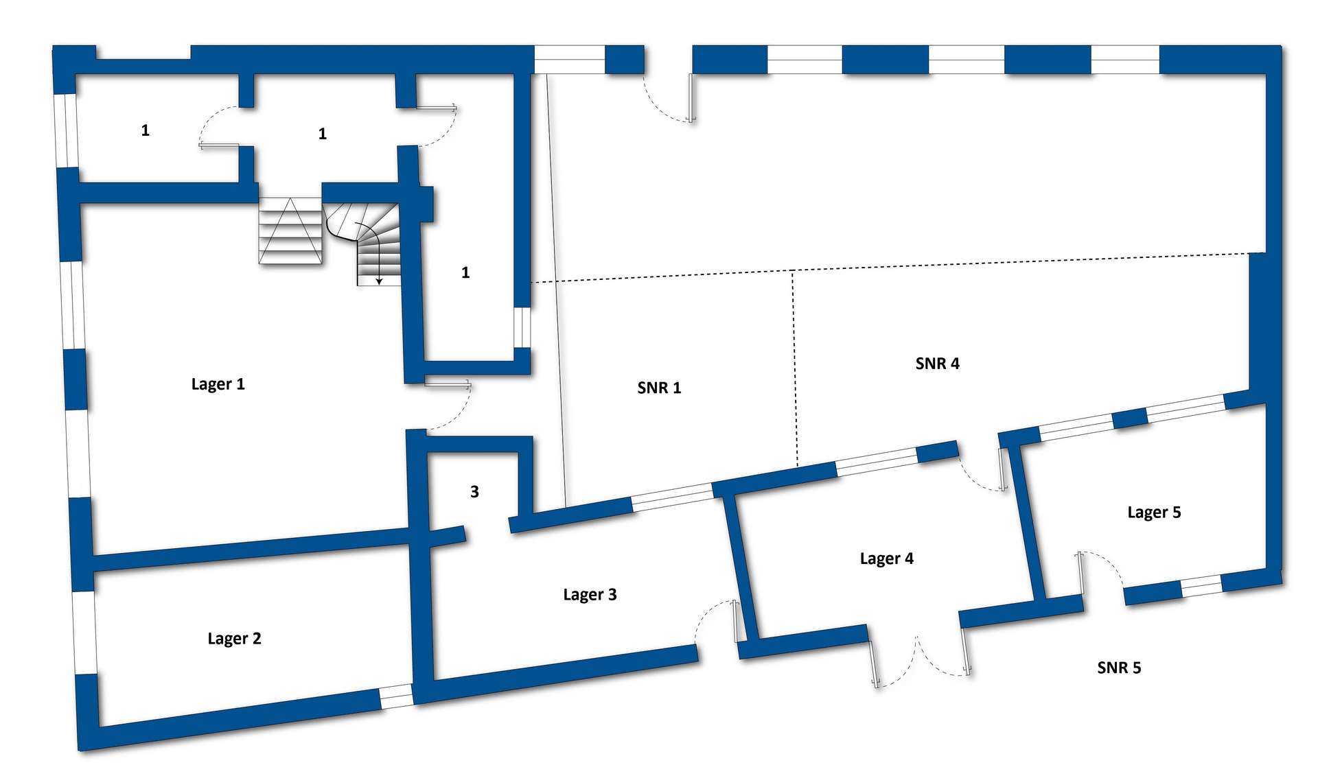
Diese besondere stilvoll sanierte Remise vereint historischen Charme mit modernem Loftcharakter. Neben zwei großen Gewerbeeinheiten stehen ebenfalls 5 getrennte Lagereinheiten zur Verfügung.
Eingebettet in das gewachsene Umfeld von Berlin-Köpenick entsteht hier ein außergewöhnlicher Ort, der sowohl zum Arbeiten als auch zum Wohnen inspiriert.

Grundrisse

Sie sehen gerade einen Platzhalterinhalt von Google Maps. Um auf den eigentlichen Inhalt zuzugreifen, klicken Sie auf die Schaltfläche unten. Bitte beachten Sie, dass dabei Daten an Drittanbieter weitergegeben werden.

Mehr Informationen

Energieausweis

Energieausweistyp Bedarfsausweis
Translation missing: de.simple_form.labels.defaults.thermal_characteristic 349.2 kWh/m²a
Baujahr ca. 1900
Energieeffizienzklasse E
Wesentlicher Energieträger Gas

Exposéanfrage

Unsere Kurz-Exposés enthalten die wichtigsten Fakten rund um die angebotene Immobilie. Entspricht das Objekt Ihren Vorstellungen, bieten wir Ihnen die Möglichkeit, ein ausführliches Exposé mit weiteren Details anzufragen. Dafür benötigen wir einige persönliche Angaben von Ihnen. Sie erhalten Zugang zu weiteren Bildern, einer virtuellen 360°-Tour, der genauen Adresse des Objekts und der Möglichkeit, Ihren Besichtigungstermin zu vereinbaren.

string(7) "4816975"

    Zur Person

    Anschrift

    *Pflichtfeld